-
MEDYCZNE , ZAGRANICZNE , WSZYSTKIE1
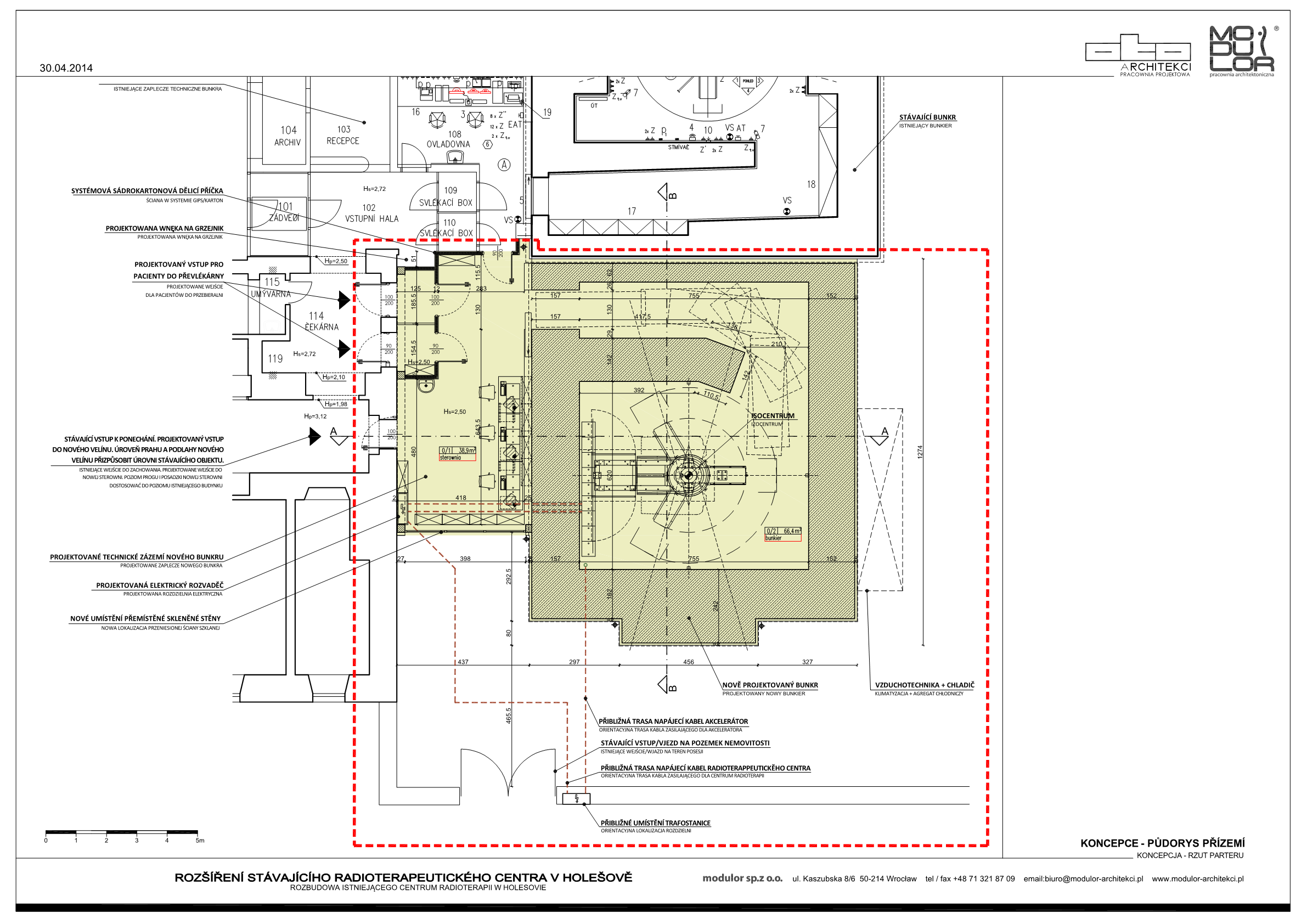
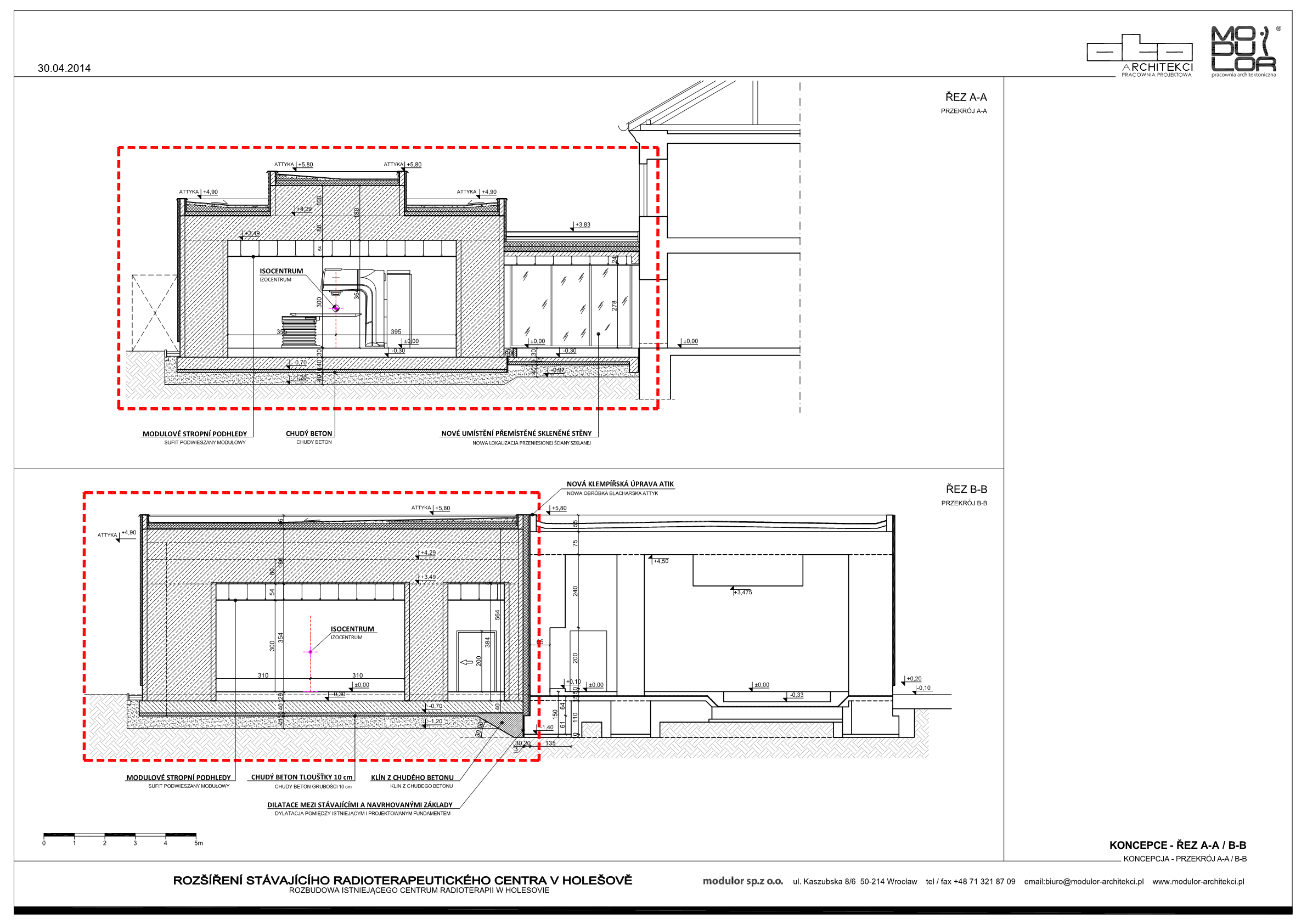
ROZBUDOWA ISTNIEJĄCEGO CENTRUM RADIOTERAPII
- Lokalizacja
- Holesov, Czechy
- powierzchnia zabudowy
- 171.74 m²
- powierzchnia użytkowa
- 102.00 m²
- ilość kondygnacji
- 1
- inwestor
- MUDr. Jan Zajic
- etap
- Projekt koncepcyjny
- rok realizacji
- 2015