-
PUBLICZNE , WSZYSTKIE , TECHNOLOGICZNE , WSZYSTKIE1
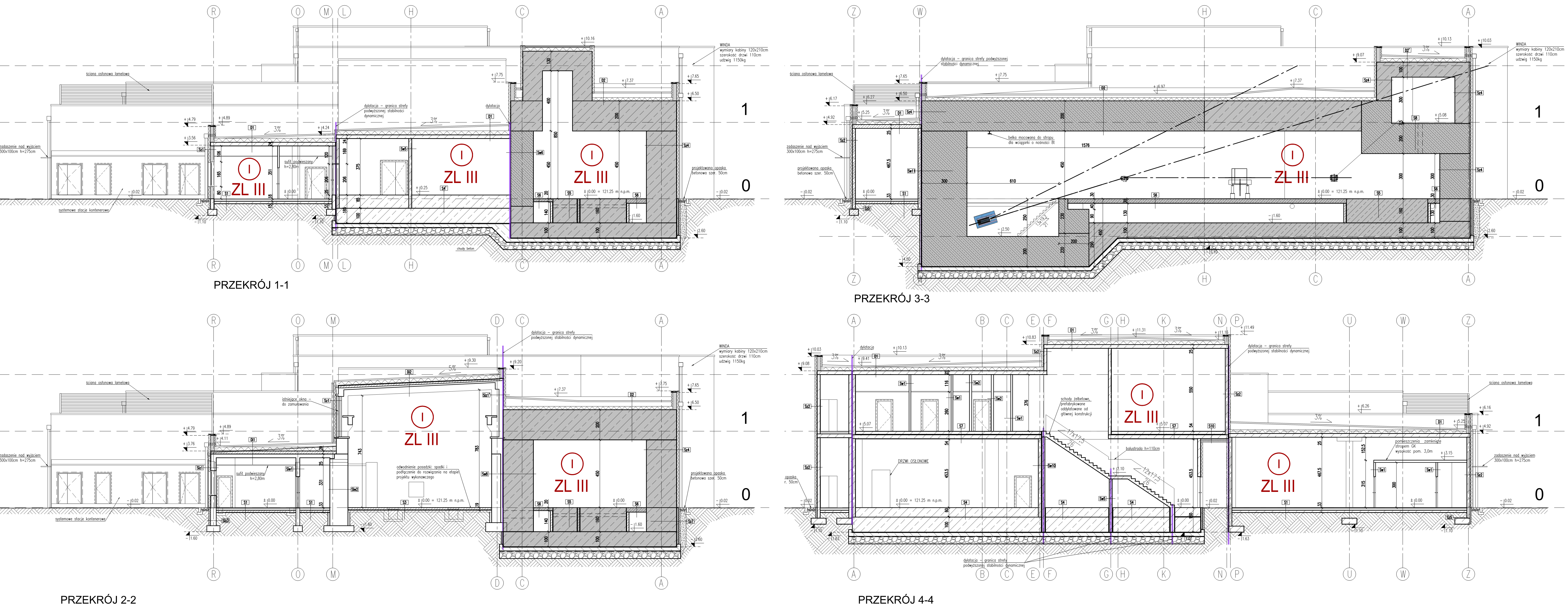
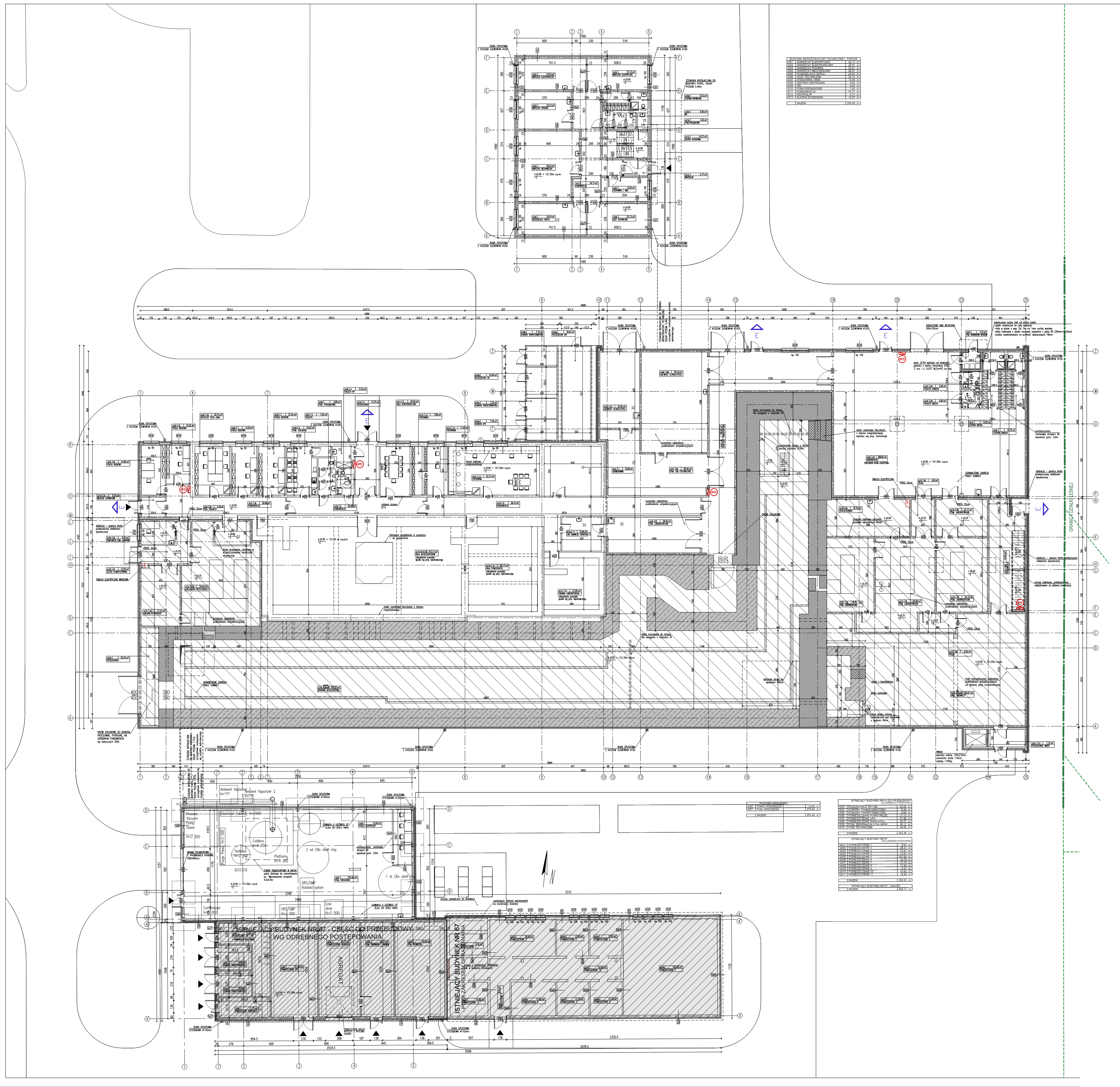
KOMPLEKS LASERA NA SWOBODNYCH ELEKTRONACH POLFEL
- Lokalizacja
- Otwock (Świerk)
- powierzchnia zabudowy
- 4 487.96 m²
- powierzchnia użytkowa
- 4 107.35 m²
- ilość kondygnacji
- 2
- inwestor
- Narodowe Centrum Badań Jądrowych
- etap
- Projekt budowlany, decyzja o pozwoleniu na budowę
- rok realizacji
- 2021