-
MEDYCZNE , ZAGRANICZNE , WSZYSTKIE , WSZYSTKIE1
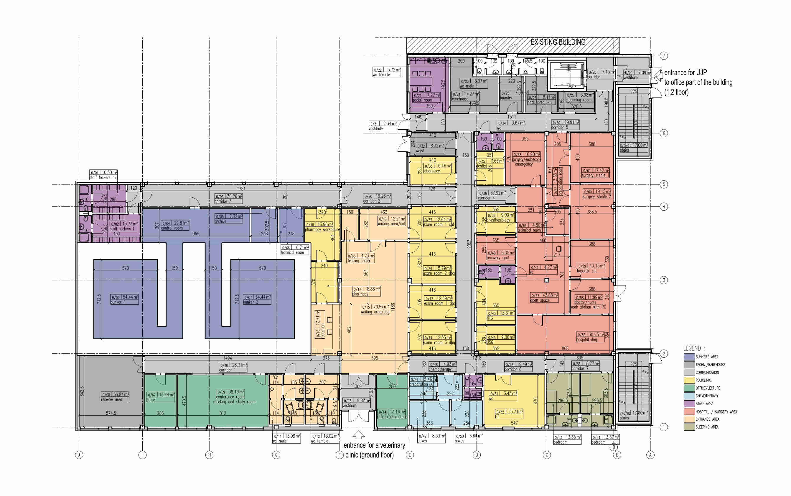
CENTRUM WETERYNARYJNE
- Lokalizacja
- Praga, Czechy
- powierzchnia zabudowy
- 1 358.54 m²
- powierzchnia użytkowa
- 2 366.78 m²
- ilość kondygnacji
- 3
- inwestor
- UJP Praha, a.s.
- etap
- Projekt koncepcyjny
- rok realizacji
- 2018