-
MEDYCZNE , WSZYSTKIE , WSZYSTKIE1
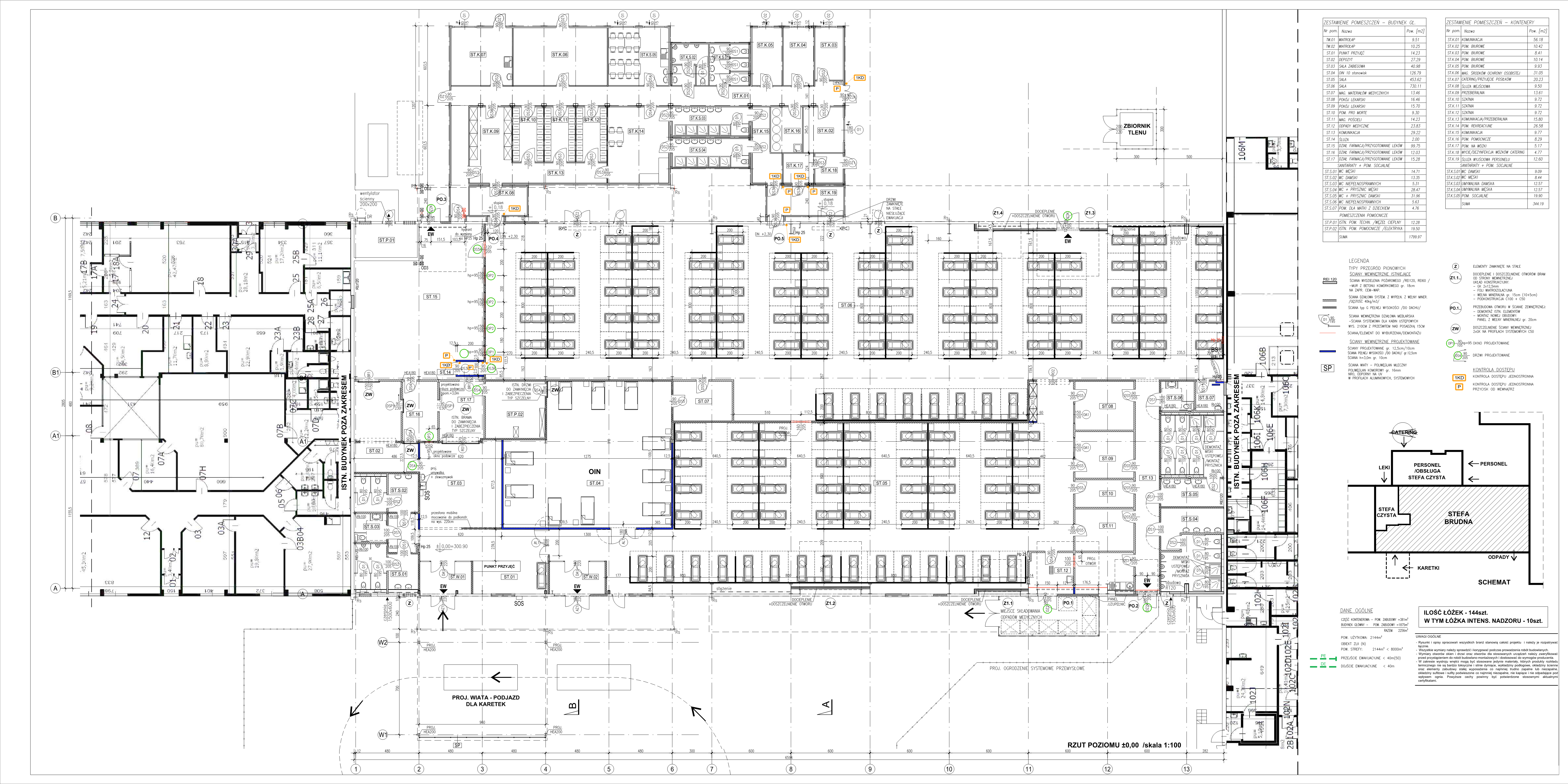
ADAPTACJA I PRZEBUDOWA NA POTRZEBY SZPITALA TYMCZASOWEGO
- Lokalizacja
- Katowice, Pyrzowice
- powierzchnia zabudowy
- 2 342.60 m²
- powierzchnia użytkowa
- 2 169.70 m²
- ilość kondygnacji
- 1
- inwestor
- P.S. BUDOPROJEKT
- etap
- Projekt budowlano-wykonawczy, realizacja
- rok realizacji
- 2020